Brama Oławska - Biuro

  • biuro-do-wynajecia-dolnoslaskie-wroclaw-brama-olawska-10793769-1
  • biuro-do-wynajecia-dolnoslaskie-wroclaw-brama-olawska-10793769-2
  • biuro-do-wynajecia-dolnoslaskie-wroclaw-brama-olawska-10793769-3
Informacje / oferta
Budynek: Brama Oławska
Numer: 71288/3105/OLW
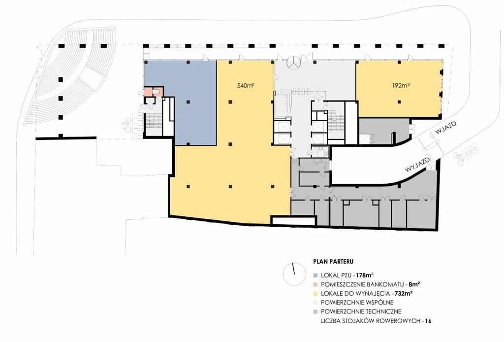
Powierzchnia: 1216.00 m2
Czynsz za mkw: 24.00 EUR / m²
Oplata eksploatacyjna: 18.10 PLN / m²
Dostępne powierzchnie: 810.00 - 1988.00
Standard budynku
Opis
Brama Oławska to nowopowstający biurowiec w miejscu dawnego budynku PZU. Obiekt klasy A o powierzchni całkowitej ok 14 tys. m kw. powstanie w samym centrum Wrocławia, przy jednym z największych węzłów komunikacyjnych - Placu Dominikańskim. Budynek składać się będzie z 7 kondygnacji naziemnych o powierzchni typowego piętra ok. 1800 m kw. oraz 3 kondygnacji podziemnych, na których będzie zlokalizowane 140 miejsc parkingowych. W budynku dodatkowo znajdzie się stacja ładowania samochodów elektrycznych, miejsca postojowe dla rowerów oraz szatnie i prysznice dla rowerzystów. Architektura budynku doskonale wpasuje się w otoczenie dzięki połączenia nowoczesnych elementów z tradycyjnymi.
OCEŃ
5/5 (1)
Skontaktuj się
więcej
więcej
LOKALIZACJA
więcej
więcej